...

Exclusive Casita Bungalows

Custom interior and exterior designs




Klondike Gold Collection




Ultimate in Luxury and Comfort

The Klondike Gold collection is exclusive to The King's Landing Resort Group Ltd. These are not your fathers small trailer.  Each speaks to nature through design, comfort and unprecedented luxury.  Maximizing living space in and around the park model as well exquisite views from the rooftop terraces with their clear railing systems, and optional outdoor kitchen, BBQ and Bar.  Enjoy views like no other




Just Imagine


An oasis on the lake.  All the features of the best city high end condo's offer out at the lake.  Great architecture and interior designs that flows out through the large panel sliding doors across the custom decks and patio's to exquisitely styled outdoor rooms.


Luxury on the Lake no other.





Upper Roof Decks

Elevate yourself and feel the breeze flow through as you sit beneath the stars and the northern lights

Casita Designs as Individual and Unique as you





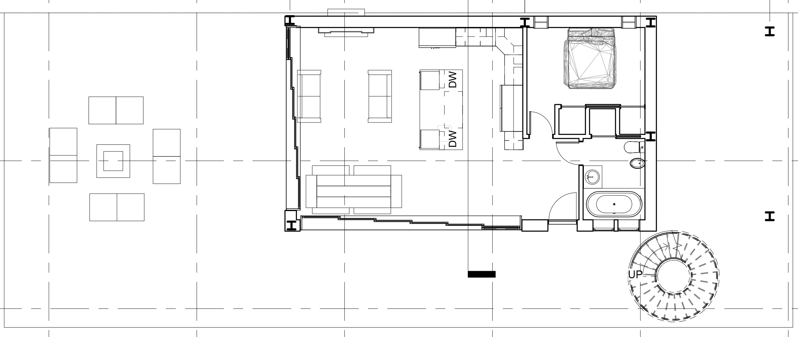
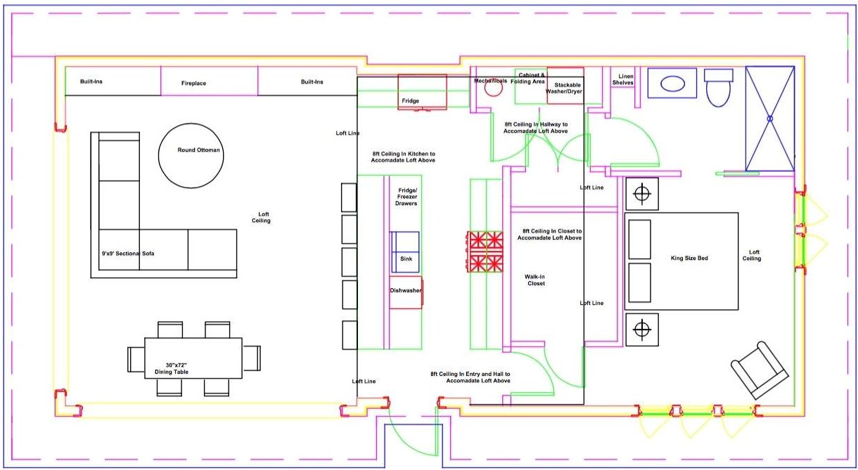
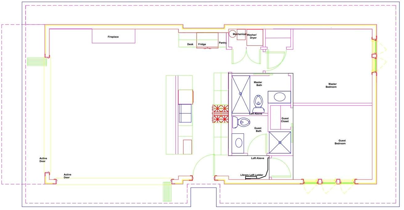
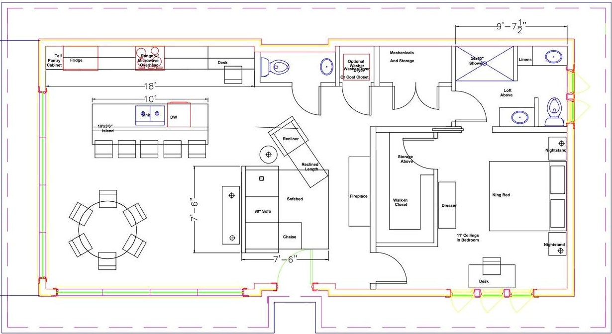
Floor Plans






Rocky Mountain

Full Kitchen and lounge Master bedroom

Outdoor fireplace + Patio

Large upper deck

Forest View

Master bedroom Full Kitchen

Large Living room




The View

Master bedroom + Kitchen

Living Room

Homesteader

Large Living Space + Kitchen

Two Bedrooms or Bedroom + Office




General Information email us at:

Sales@TheKingsLandingResort.ca




Casita Bungalow & Lots

Join the Exclusive Family

How to Join the Family

Explore the possibilities



780-935-9287

Copyright © 2020-present · All Rights Reserved

The King's Landing Private Resorts Ltd